INFORMATION
アソシア博多翠景(仮称)資料請求受付中
資料請求いただくと各種最新情報を優先的にお知らせします。
アソシア博多翠景(仮称)資料請求受付中
資料請求いただくと各種最新情報を優先的にお知らせします。
HAKATA AREA
PREMIUM FLOOR
ここだけに許された特別な住空間
GARALOなど高さを活かした設計により、ゆとりある暮らしを実現した13F・14F限定のプレミアムフロア
View More

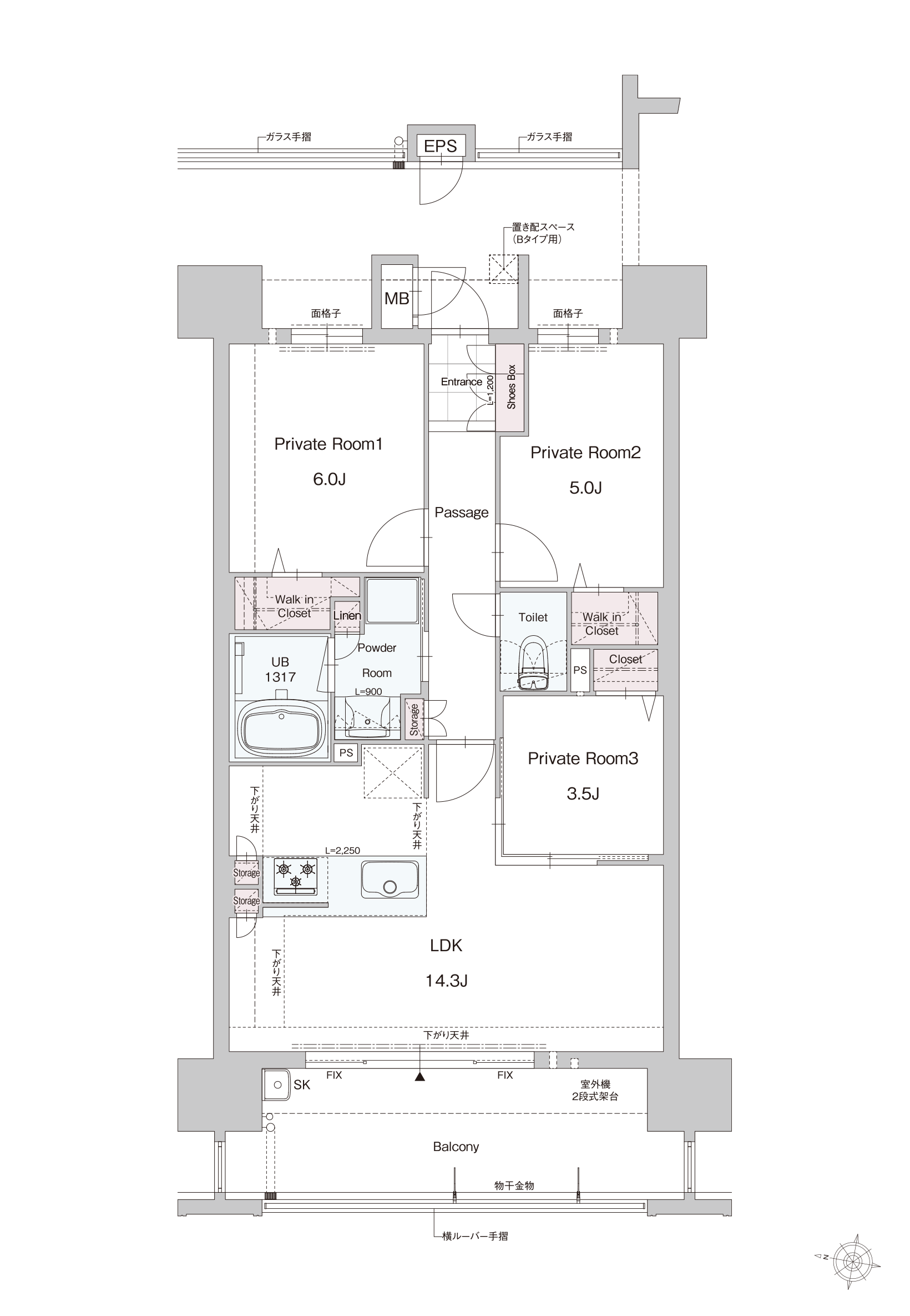
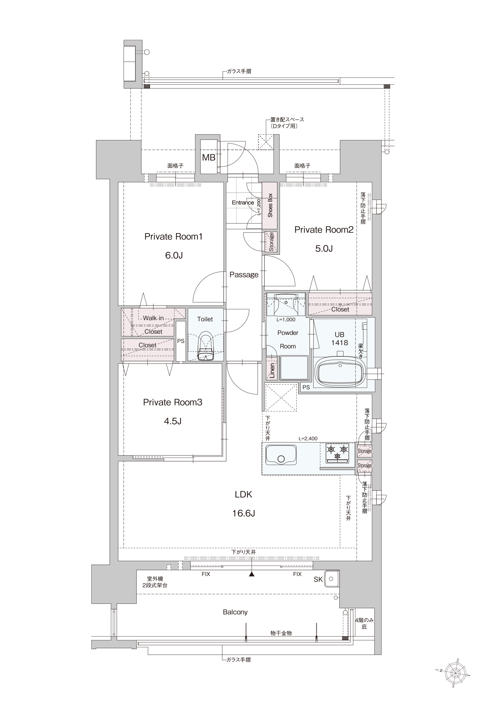
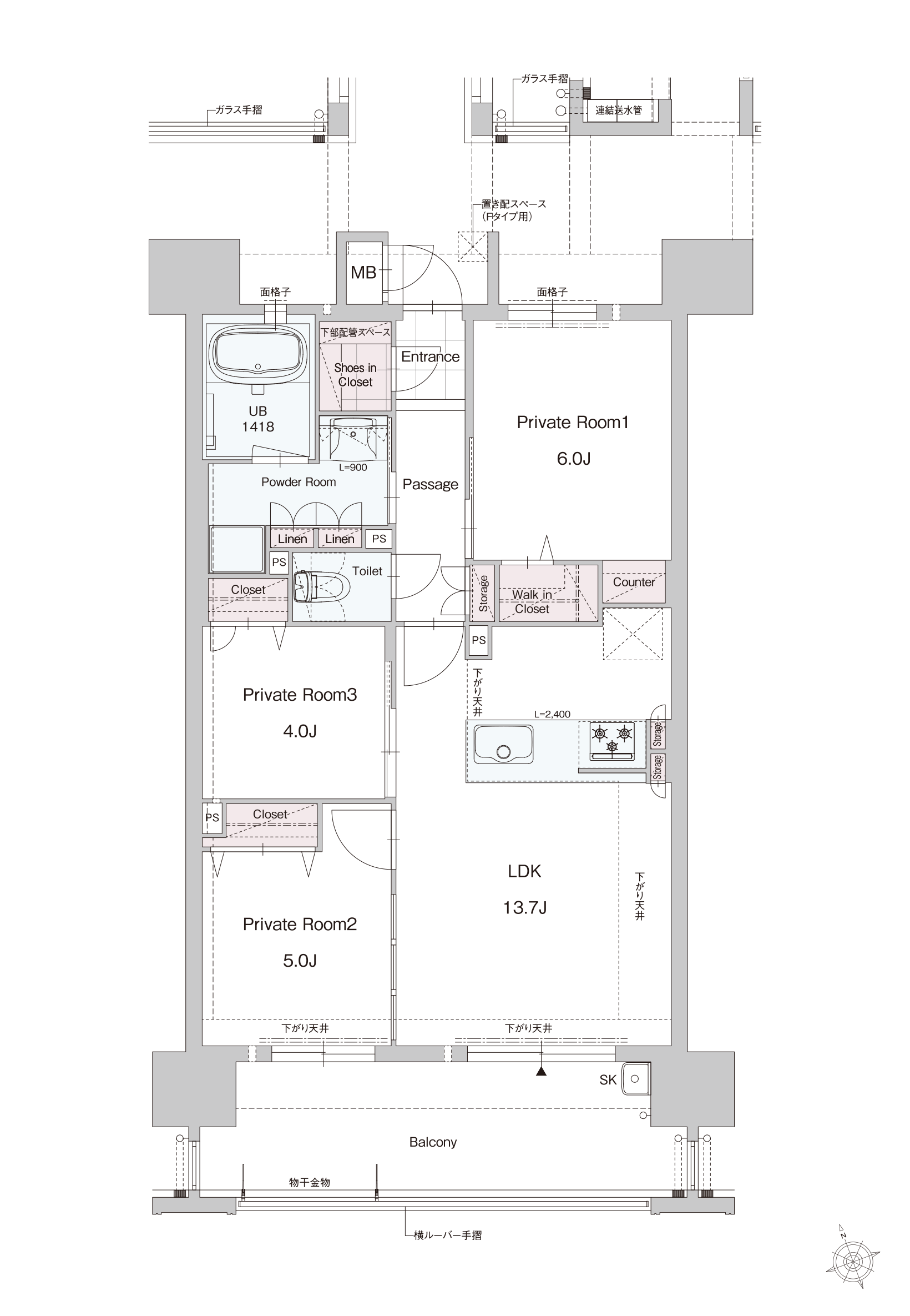
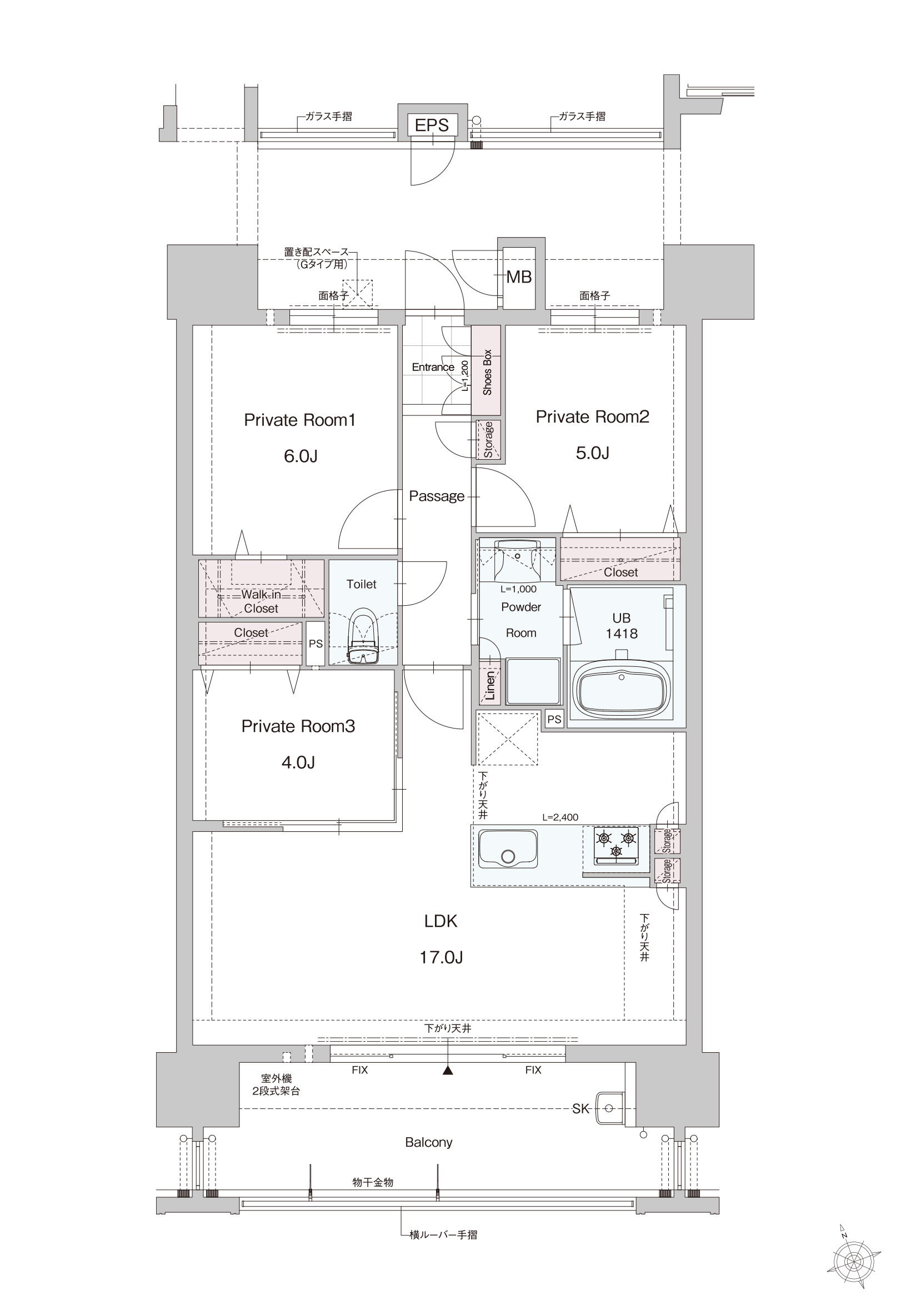
9タイプのルームプランの詳細をご覧いただけます。

専有面積78.01㎡(23.59坪)
バルコニー10.45㎡( 3.16坪)

専有面積64.26㎡(19.43坪)
バルコニー13.15㎡(3.97坪)

専有面積60.18㎡(18.20坪)
バルコニー11.25㎡(3.40坪)

専有面積70.38㎡(21.28坪)
バルコニー12.43㎡(3.76坪)

専有面積71.26㎡(21.55坪)
バルコニー9.70㎡(2.93坪)

専有面積66.15㎡(20.01坪)
バルコニー13.50㎡(4.08坪)

専有面積70.19㎡(21.23坪)
バルコニー13.10㎡(3.96坪)

専有面積54.06㎡(16.35坪)
バルコニー12.30㎡(3.72坪)

専有面積80.43㎡(24.33坪)
バルコニー11.65㎡(3.52坪)