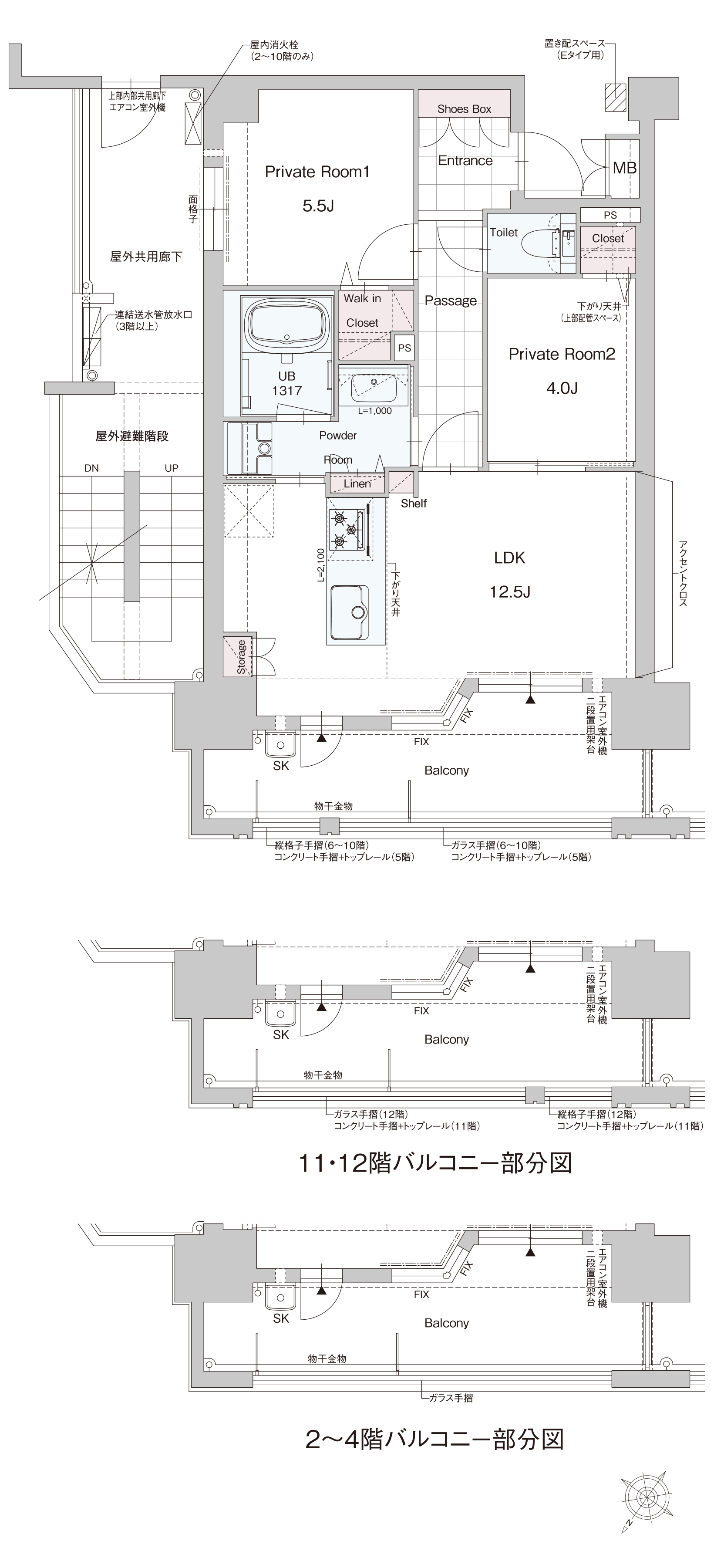
E type
|
2LDK

専有面積
54.30㎡(16.42坪)
バルコニー面積
10.92㎡(3.30坪)
※11・12FのLDK・プライベートルームの天井には、数カ所スプリンクラーが設置されます。
※12Fのみプライベートルーム2のエアコン配管は実装となります。
来場予約 資料請求
TOP