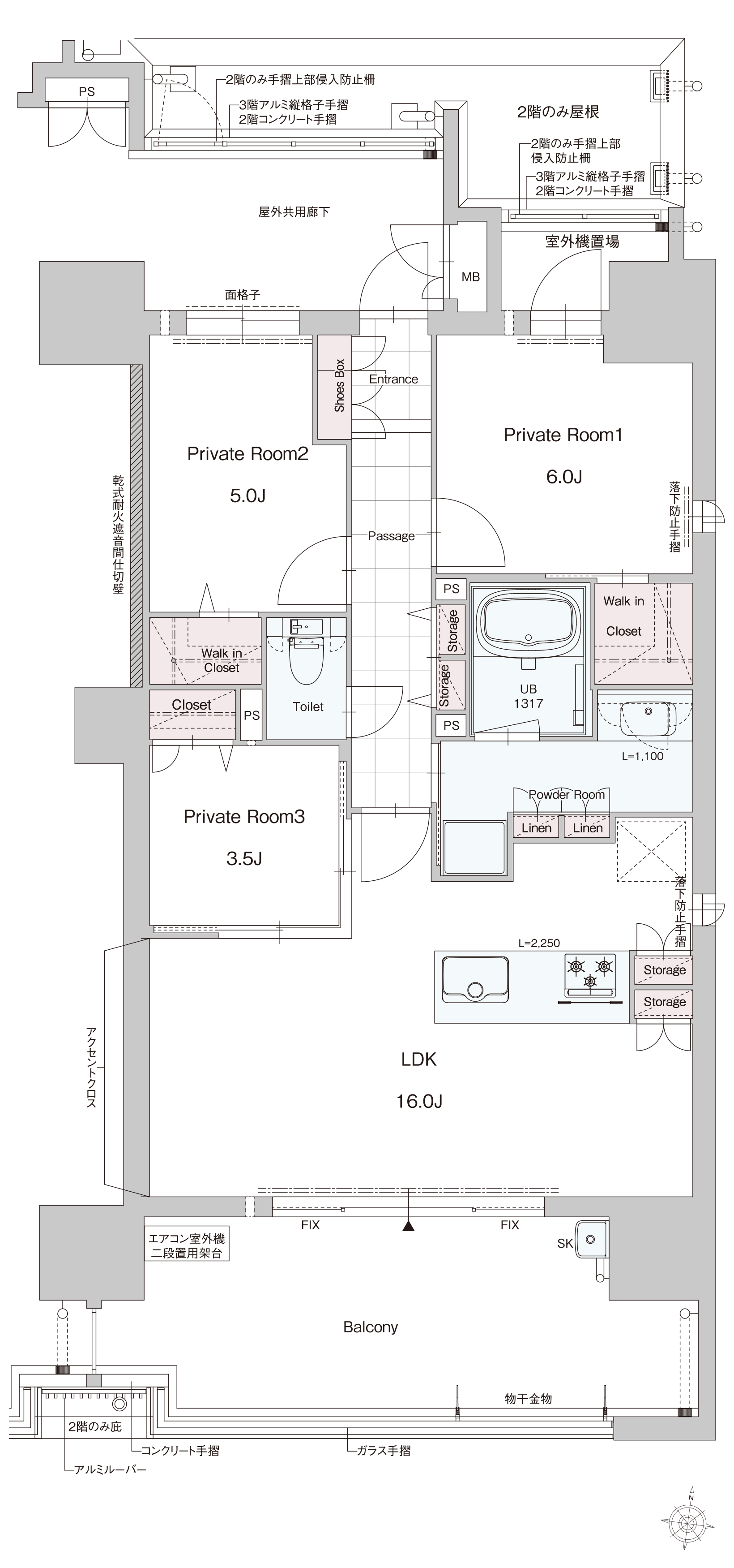
南向き
角部屋
D type
|
3LDK
専有面積
70.35㎡(21.28坪)
バルコニー面積
17.60㎡(5.32坪)
室外機置場面積
2.58㎡(0.78坪)
※掲載の間取り図は計画段階の図面を基に描き起こしたもので、施工上の都合等により変更となる場合があります。
詳細は最新の図面集をご確認ください。
詳細は最新の図面集をご確認ください。