南向き
角部屋
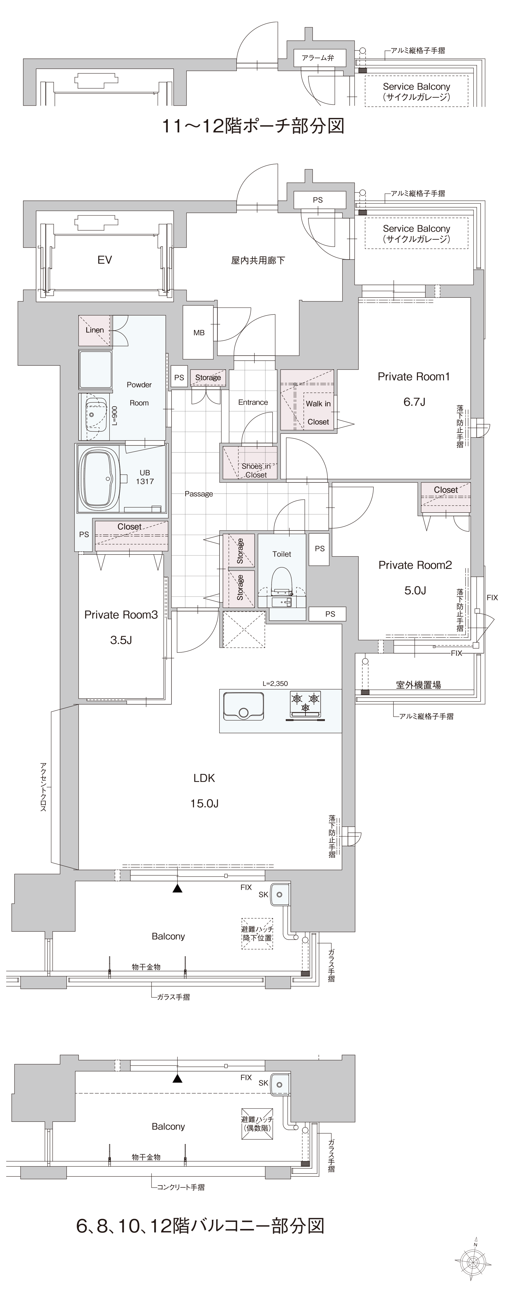
1フロア2邸
ポーチ
専用EV
専用サイクルガレージ
F type
|
3LDKBASIC PLAN2LDK+Work SpaceCUSTOMIZE PLAN
専有面積
74.25㎡(22.46坪)
バルコニー面積
10.30㎡(3.11坪)
室外機置場面積
2.50㎡(0.75坪)
サービスバルコニー面積
4.08㎡(1.23坪)
※11・12FのLDK・プライベートルームの天井には、数カ所スプリンクラーが設置されます。
persona data
それぞれの趣味を満喫したり、ゆっくりリラックスできる癒しの空間として、
また掃除がしやすく、いつも清潔感のある生活空間を叶えるために、
余白のある居住空間を希望している。
今は夫婦2人だが、いずれ子供をもうけた時のために、
子供部屋を確保しておきたい。
※掲載の間取り図は計画段階の図面を基に描き起こしたもので、施工上の都合等により変更となる場合があります。
詳細は最新の図面集をご確認ください。
詳細は最新の図面集をご確認ください。
※掲載の間取りは当該物件のプランを基にしたアイデアを描き起こしたもので、イメージです。
※カスタマイズには別途費用が発生する場合があります。
※高さや使用用途については行政上の制限があります。また、審査機関との協議よって計画の合否が決定します。
※設計・仕様の変更により、性能が標準を下回る可能性があります。また、「ZEH-M Oriented」の認定取得の為に、制限を設ける場合がございます。詳細は担当係員にご確認ください。
※工事進捗状況に伴い、期限がございます。
※掲載のCG・イラストはイメージです。
※インテリア、植栽などは販売価格には含まれません。
※カスタマイズには別途費用が発生する場合があります。
※高さや使用用途については行政上の制限があります。また、審査機関との協議よって計画の合否が決定します。
※設計・仕様の変更により、性能が標準を下回る可能性があります。また、「ZEH-M Oriented」の認定取得の為に、制限を設ける場合がございます。詳細は担当係員にご確認ください。
※工事進捗状況に伴い、期限がございます。
※掲載のCG・イラストはイメージです。
※インテリア、植栽などは販売価格には含まれません。