プライベート性の高い
私邸領域の創出を。

DEUX・RESIA 大濠 SOUTH SIDEでは、独立性の高い私邸の創出を建築思想に据え、都市の中に穏やかな生活環境を描き出しています。
1フロア2〜4邸の設計や独立したEVホール、1Fの坪庭など、角を曲がるたび景色が切り替わる、私邸の醍醐味をご体感ください。

CLUB FLOOR

1フロアを2邸で専有。
住戸とエレベーターがダイレクトにつながったフロア。

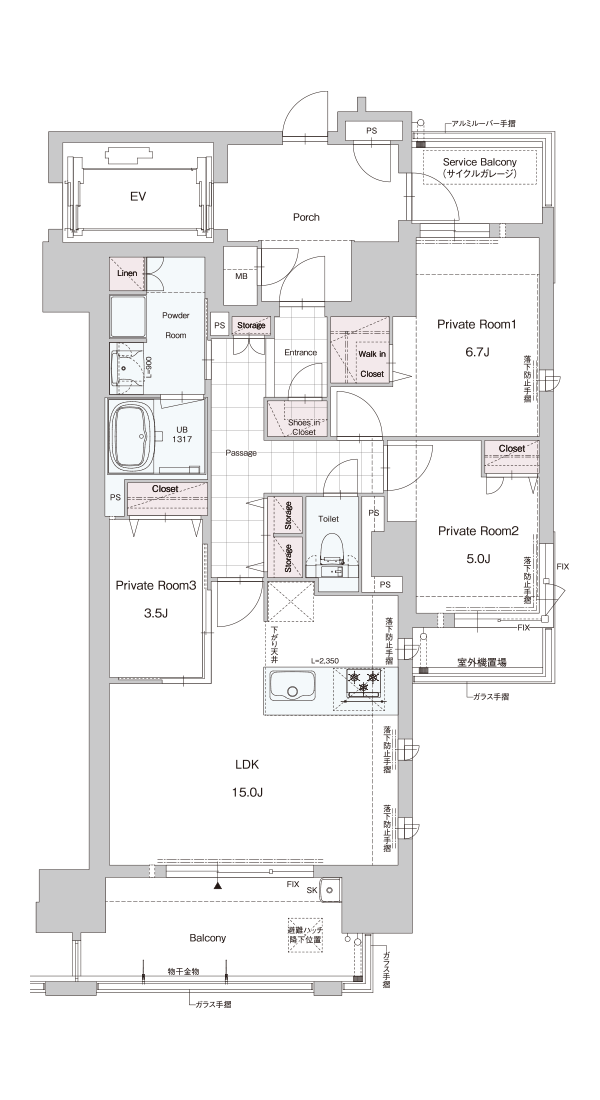
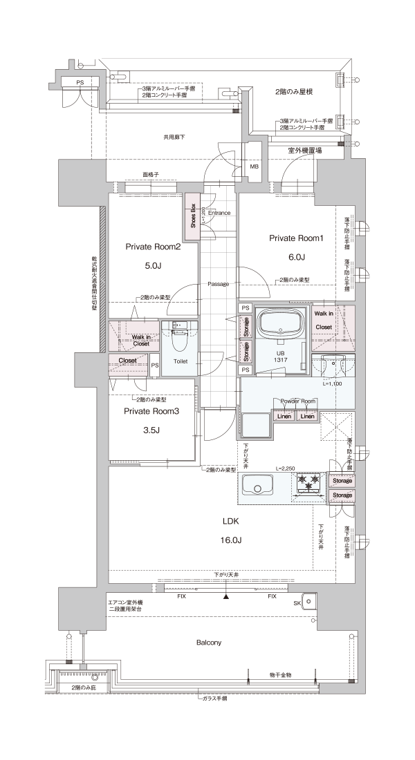
1フロアを4邸で専有。
出入りを2邸に限定したフロア。

PICK UP ROOM
  • E type

    コーナーサッシとアイランドキッチンで開放感をより高めたLDKが、家族が集う幸せなシーンを彩る住まい。

  • F type

    LDKと緩やかにゾーニングされたWork Spaceのある、美意識と居心地の良さを追求した住まい。

※本ページに掲載の間取りは一部抜粋のものです。全容は各詳細ページからご確認いただけます。
PREMIUM FLOOR
高さによる空間の広がりを叶える
プレミアムフロア (13・14F)
来場予約 資料請求
TOP