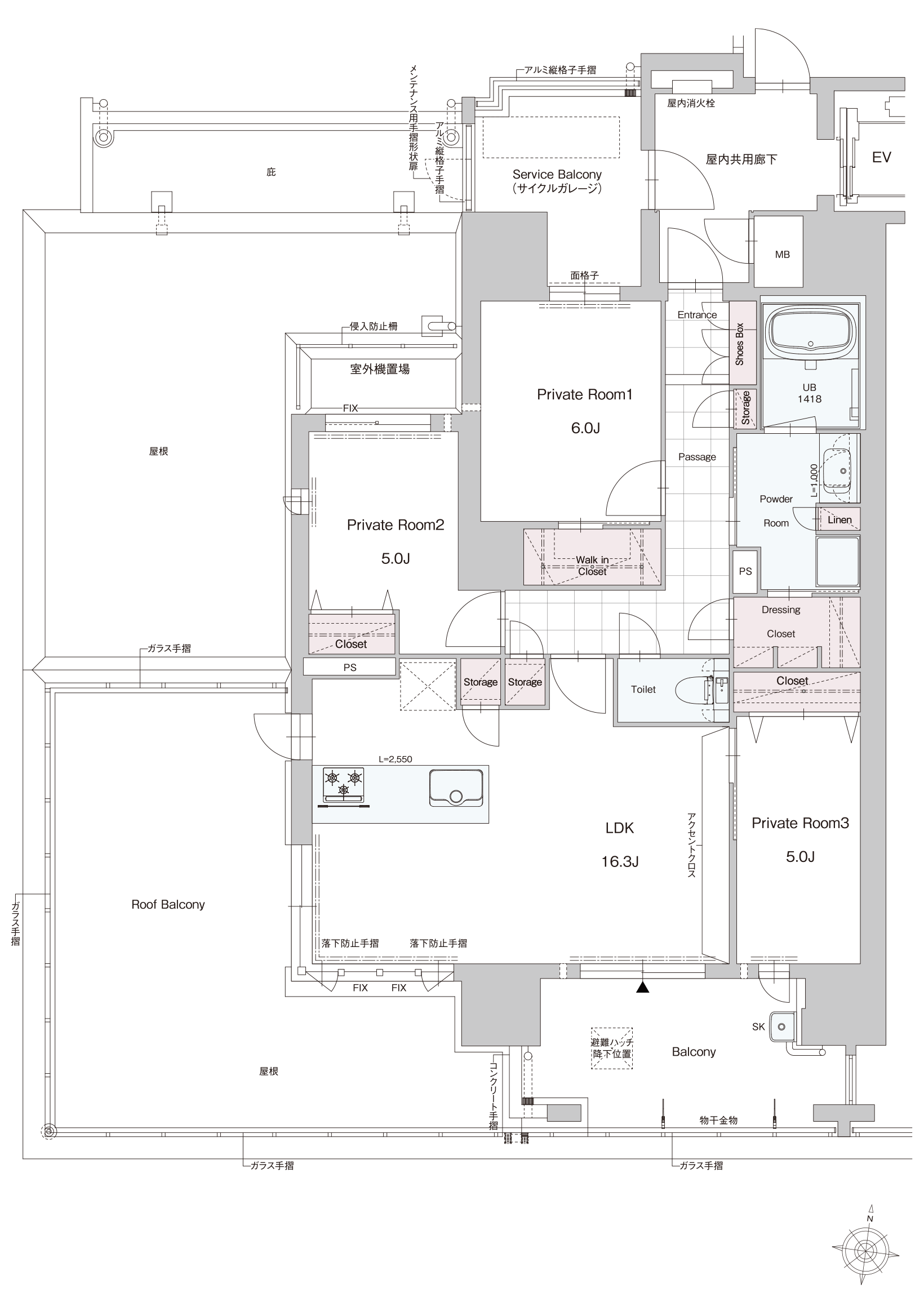
南向き
角部屋
1フロア2邸
ポーチ
専用EV
専用サイクルガレージ
E1 type
|
3LDK
専有面積
80.25㎡(24.27坪)
バルコニー面積
11.24㎡(3.40坪)
ルーフバルコニー面積
30.58㎡( 9.25坪)
室外機置場面積
2.75㎡(0.83坪)
サービスバルコニー面積
7.81㎡(2.36坪)
※掲載の間取り図は計画段階の図面を基に描き起こしたもので、施工上の都合等により変更となる場合があります。
詳細は最新の図面集をご確認ください。
詳細は最新の図面集をご確認ください。